Zlínský kolektivní dům
  
akad. arch. Eduard Staša, Naše pravda, 1990
Pavel Novák, Zlínská architektura 1900 - 1950
Stával tady kdysi výstavný dům zlínského radního Antonína Minaříka a potom jeho syna, poštmistra. Svou velkou zahradou sahal až k panské cihelně pod Růmy.  V třicátých letech pozemky koupila firma Baťa a v roce 1927 si tu postavil vilu  J.A.Baťa, nevlastní bratr Tomášův a pozdější šéf podniku. K vile přiléhala komfortně založená zahrada s bazénem a tenisovým dvorcem. Po válce se ve vile uhnízdila ČTK a Čsl. rozhlas.
Rozlehlá zahrada uprostřed města lákala ke stavebnímu využití. A tak se po polovině čtyřicátých let zrodila myšlenka umístit zde obytný kolektivní dům. Šlo o novou formu bydlení, která se ve třicátých letech objevila v projektech architektonické avantgardy jak v Sovětském svazu, tak i u nás. A našla pak své pokračování v poválečných Le Corbusiérových kolektivních domech ve Francii, ale i v jiných pokusech v západních zemích. V letech 1948 – 1958 vznikl u nás kolektivní dům v Litvínově (arch. Linhart a Hilský). A přibližně v téže době se staví kolektivní dům zlínský podle návrhu ing. arch. J. Voženílka  a kolektivu projektantů návrhového oddělení n.p. Svit. Zlínská stavba rozvíjí myšlenku započatou již dříve na Morýsových domech. 
Kolektivní dům  se 102 byty a přibližně 250 až 400 obyvateli měl pod svou střechou i společné občanské vybaveni pro jejich potřebu. Podle projektu k němu patřily: v přízemí – restaurace, tři klubovny s přednáškovým sálem, denní společenská místnost, knihovna a v připojeném objektu jesle, mateřská školka a družina. V suterénu domu bylo možno najít prádelnu, dílny pro šití a kutily s fotokomorou. A také příslušenství pro dětská zařízení a restauraci. Na terase se nacházela tělocvična s příslušenstvím a solaria. To všechno mělo sloužit obyvatelům domu. 

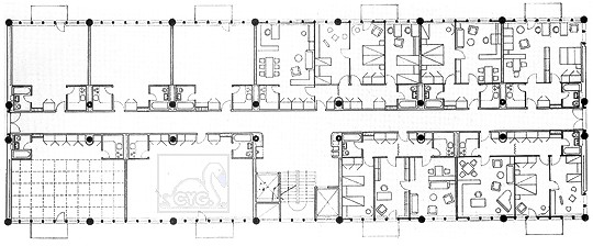
  Půdorys přízemí s restaurací, klubovnami, jeslemi a školkou.
Výhodné situování  v půdorysu města umožňovalo bezprostřední spojení se sousední školní čtvrtí, sportovním stadionem a zimními lázněmi  pod Růmy i s centrem města. Připomeňme si pouze, že kolektivní dům nebyl míněn jako forma bydlení pro hromadnou bytovou výstavbu, ale pro určitou sociální skupinu obyvatel. Hlavní část domu se svými 11 etážemi a terasou měla devět etáží obytných s 26 byty třípokojovými o obytných plochách 

  Půdorys typického podlaží s možnými variantami vybavení bytů.
Vycházelo se z předpokladu, že obyvatelé domu se budou stravovat ve společné restauraci. V prostoru chodeb napojených na centrální schodiště s výtahy projektanti navrhovali chladící boxy, shozy na odpadky a na podestách schodiště telefonní hovorny. Zdálo by se tedy, že celé zařízení drží jasná a dobrá myšlenka a že vše poběží bez problémů. Jenže realita života mnohé změnila a došlo i na některá úsporná opatření v průběhu stavby. Víme, že podobný osud potkal mnohé domy blížící se tomuto typu i jinde. 
Předpoklad, že obyvatelé a jeho společenské vybavení utvoří proporčně vyvážený a dobře fungující uzavřený organismus, narušila řada okolností. Těch necelých 400 obyvatel nemohlo zajistit ustálené využití dětských zařízení. A tak školka i jesle začaly sloužit širšímu okruhu obyvatel města a brzy se ukázala potřeba jejich rozšiřování zabíráním kluboven i společenské místnosti. Obyvatelé domu  zaměstnaní v průmyslových podnicích se stravovali v závodních jídelnách a nevyužívali restauraci v domě. Ta se dostala od počátku do zájmové sféry podniku RaJ. A když se tento provoz dostával stále více do rozporů se životem obyvatel domu, převzala restauraci vysokoškolská menza. 

  Celkový pohled na kolektivní dům ze severozápadu
Jakmile však restaurace přestala plnit své původní poslání, ukázaly se kuchyňky v bytech nedostačující. A tak ze všeho společenského vybavení, které mělo sloužit obyvatelům domu, zbylo nakonec poměrně málo.
Na chladící boxy v etážích se už nedostalo a telefonní hovorny i shozy na odpadky byly časem zrušeny. Z důvodů různých. Prostor mezi domem a Štefánikovou ulicí dnes částečně okupuje (mimo automobilů) tradiční kontejnerové zátiší. Takže nezbývá než konstatovat, že (možná v jiných dimenzích) nadějný pokus s kolektivním domem nebyl v našem případě úspěšný. Sociálně vzato – funguje dnes jako klasický bytový dům hotelového typu. 

  Kolektivní dům z II. domova žen 19. dubna 2006
Kolektivní dům postavil v letech 1949 – 1951 n.p. Svit, jeho stavební oddělení. Šlo vlastně o dvanáctipodlažní monolitickou železobetonovou budovu na půdorysné osnově polí 

 Detail fasády s perforovanými betonovými balkony (stejné prvky zdobí věžové a Morýsovy domy). 
Není bez zajímavosti, že právě kvůli těmto svým kvalitám je budova zařazena do státního seznamu nemovitých památek jako příklad svébytné české moderní architektury. Dnes, s odstupem skoro šedesáti let, vidíme před sebou budovu už poněkud uměle vyšlechtěnou novodobou rekonstrukcí, která zažila i úpravy částí konstrukce a stavebních detailů. Zasloužila si to i přes fakt, že její původní poslání nebylo zcela naplněno. Stala se neodmyslitelnou součástí života i architektury města Zlína a (bohužel) zároveň i pomyslnou tečkou za dodržováním baťovského stylu výstavby obytných budov. 

Na rozloučenou s touto kapitolou se podívejme na původní plány:
a) pohled perspektivní (díváme se z ulice Štefánikovy, od Orlovny)
